(902) 877-2122
Multi Family

173 St Margaret's Bay Road, Halifax, NS (MLS® 202605686).

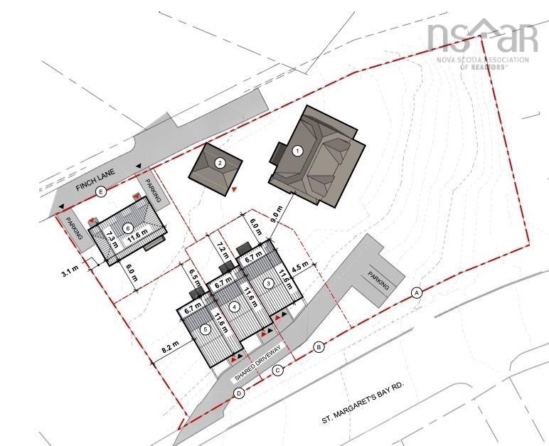
173 St Margaret's Bay Road, Halifax, NS (MLS® 202605686): Positioned on a generous parcel along sought-after St. Margaret’s Bay Road, this rare offering presents a compelling blend of immediate income, approved development potential, and long-term upside. The historic residence known as “Craigmore” sits on a property now supported by an approved Development Agreement, enabling subdivision into five distinct lots and the construction of a luxury duplex, a substantial three-unit townhome, plus the opportunity to add an additional unit by converting the existing detached garage. Importantly, the Development Agreement predates the Housing Accelerator zoning changes, offering prospective purchasers the potential to explore enhanced density options as planning policies evolve. The existing structure is a legal over-under duplex with established tenants, providing stable holding income while future plans are realized. Steeped in local history, Craigmore was originally built in 1908 and reflects classic Arts & Crafts / Cottage architectural influences. Mature landscaped grounds, stone walls, and winding garden pathways contribute to the property’s timeless character and enduring curb appeal. A bronze plaque at the entrance commemorates its Gaelic name, meaning “solid rock,” a fitting tribute to both its heritage and its enduring presence within the North West Arm community. This is a rare opportunity to secure a strategically located development site with approved entitlements, current revenue, and meaningful future potential. Ideal for investors, builders, or developers seeking to create a signature residential enclave in one of Halifax’s most desirable corridors.

Directions
From Quinpool Rd - take roundabout, 3rd exit: St Margaret's Bay Rd, then an immediate right onto #175. From Hwy 102 - take Joe Howe to roundabout, take first exit: St Margaret's Bay Rd, then an immediate right onto #175. You can also take Finch Lane to access additional parking on parking pad at rear of property.

Inclusions
Standard Appliances, All Exterior Structures

Listing Courtesy of: Engel & Volkers

$2,899,900
MLS®
202605686
PID
40577041
List Price
$2,899,900
Type
Other
Sewer
Municipal
Building Age
117
Foundation
Block, Concrete
Exterior
Wood Shingles
Flooring
Carpet, Hardwood, Tile
Water
Municipal

Features

  • Air Conditioning
  • Cable
  • Dining Room
  • Ensuite Bath
  • Family Room
  • Fireplace(s)
  • Laundry
  • Power
  • Secondary Suite
  • See Remarks
  • Storage
  • Telephone

Community Features

  • Golf Course
  • Marina
  • Park
  • Place of Worship
  • Playground
  • Public Transit
  • Recreation Center
  • School Bus Service
  • Shopping

Schools.

TypeName
Elementary SchoolSpringvale Elementary School
Middle SchoolSt Agnes Junior High School
High SchoolCitadel High School
Elementary School (Fr. Imm.)St Catherine's Elementary School
Middle School (Fr. Imm.)Oxford School
High School (Fr. Imm.)Citadel High School

contact the agent.

Nas Klayme
(902) 877-2122
nas@klayme.com

Nas has been a licensed REALTOR® since 2003. Nas enjoys the challenge of matching people to their dream homes.

Nas Klayme.

REALTOR ®
RE/MAX nova
(902) 877-2122
nas@klayme.com