(902) 877-2122
Single Family

10 Sucker Brook Road, Lower Sackville, NS (MLS® 202601806).

10 Sucker Brook Road, Lower Sackville, NS (MLS® 202601806): Incredible first or retirement home!! Pride of home ownership is very evident here! The work is all done & ready for you to move in & enjoy everything this 1 level home has to offer. The location is amazing!! Access to First Lake! Kayak,canoe,skate or swim. A few doors down is the First Lake Trail. Connecting you to a huge network of walking trails. The nearby Kinsman Park features a Splash park for the kids, a playground, community centre & supervised beach! Great english & french immersion schools, Sackville Sports Centre, Bedford Commons retail power centre for all your shopping needs, 5 min to highways 101 & 102. 14 min to HFx international airport & 25 min to downtown Hfx!!This open concept home has been beautifully updated. Chic modern kitchen & Bathroom. Kitchen offers custom modern cabinetry, high end stainless steel appliances, quartz countertops, gorgeous custom backsplash & tile floors. Gorgeous 4 piece bath. Rates well above the average for energy efficiency with the help of additional insulation, new windows and ductless heat pump. Freshly painted, new flooring & so much more! The lot allows for a garage, safe play space for pets,kids and leisure time. One of the most affordable detached homes in the city! Book to view today!!

Directions
Cobequid Rd left on Sucker Brook Rd

Inclusions
Kitchen and Laundry Appliances

Listing Courtesy of: Keller Williams Select Realty

$429,900
MLS®
202601806
PID
40094393
List Price
$429,900
Type
Single Family
Style
Detached
Sewer
Septic
Building Age
65
Foundation
Poured Concrete
Exterior
Aluminium Siding, Vinyl
Flooring
Ceramic, Laminate, Vinyl
MLA
733 ft2
TLA
733 ft2
Bedrooms
2
Bathrooms
1
Water
Municipal

Utilities

  • Cable
  • Electricity
  • High Speed Internet
  • Telephone

Features

  • Sump Pump

Community Features

  • Beach
  • Golf Course
  • Park
  • Place of Worship
  • Playground
  • Public Transit
  • Recreation Center
  • School Bus Service
  • Shopping

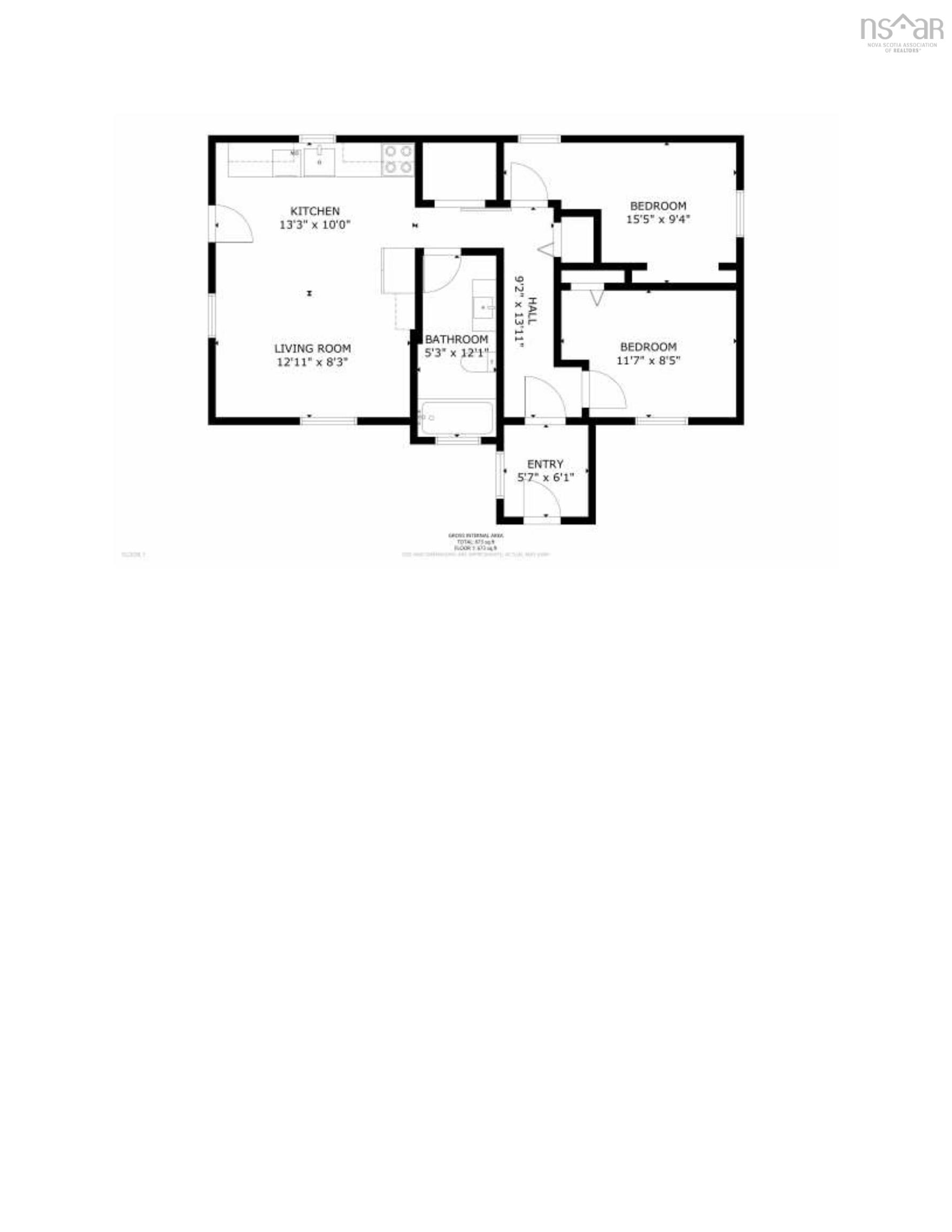
Rooms.

LevelTypeDimensions
Main FloorLiving Room12'11 x 8'3
Main FloorKitchen13'x 10'
Main FloorPrimary Bedroom8'6"x7'9" + 5'9"x4'5" lessjog
Main FloorBedroom11'7 x 8'5 less jog
Main FloorBath 15'3 x 12'1
Main FloorLaundry


Schools.

TypeName
Elementary SchoolCaudle Park Elementary School
Middle SchoolAJ Smeltzer Junior High School
High SchoolAJ Smeltzer Junior High School
Elementary School (Fr. Imm.)Cavalier Drive School
Middle School (Fr. Imm.)AJ Smeltzer Junior High School
High School (Fr. Imm.)Sackville High School

contact the agent.

Nas Klayme
(902) 877-2122
nas@klayme.com

Nas has been a licensed REALTOR® since 2003. Nas enjoys the challenge of matching people to their dream homes.

Nas Klayme.

REALTOR ®
RE/MAX nova
(902) 877-2122
nas@klayme.com

Similar Listings.