(902) 877-2122
Single Family

11 Ernest Avenue, Dartmouth, NS (MLS® 202606131).

11 Ernest Avenue, Dartmouth, NS (MLS® 202606131): Welcome to 11 Ernest Avenue, a well maintained and spacious 3bedroom, 1.5bath bungalow located on one of the quietest ends of a highly sought after Dartmouth neighborhood. This home blends classic charm with modern comfort, offering a bright layout with hardwood floors, large windows, and a welcoming living room featuring a propane fireplace. The updated kitchen and dining area provide an ideal space for everyday living and entertaining. The main level includes a king sized primary bedroom, two additional well sized bedrooms, and an updated full bath. The lower level is partially finished, offering a large family room along with excellent storage, utility space, a 2piece bath, and a dedicated laundry room. Enjoy year round efficiency with a fully ducted heat pump system and ETS radiator. The 6,500+ sq. ft. lot features a lovely backyard and a well built shed for additional storage. Located within the Crichton Park Elementary School District and close to transit, shopping, recreation, and all amenities. A fantastic opportunity in a quiet, established neighborhood. Book your private showing today.

Directions
Woodland to Laurier right on Limardo right on Ernest.

Inclusions
Fridge, stove, dishwasher, washer, dryer, basement fridge as is condition.

Listing Courtesy of: Exit Realty Metro

$539,900
MLS®
202606131
PID
00075994
List Price
$539,900
Type
Single Family
Style
Detached
Sewer
Municipal
Building Age
61
Foundation
Poured Concrete
Exterior
Wood Shingles
Flooring
Ceramic, Hardwood, Laminate, Tile
MLA
1,092 ft2
TLA
1,782 ft2
Bedrooms
3
Bathrooms
2
Water
Municipal

Utilities

  • Cable
  • Electricity
  • High Speed Internet
  • Telephone

Features

  • Propane Fireplace

Rooms.

LevelTypeDimensions
Main FloorKitchen13.2 x 10.6
Main FloorDining Room9.10 x 9.1
Main FloorLiving Room15 x 13.7
Main FloorPrimary Bedroom15 x 13.7
Main FloorBath 19.8 x 3.8 + jog
Main FloorBedroom14.3 x 8.9
Main FloorBedroom10.8 x 8.4
Main FloorMain Hallway
LevelTypeDimensions
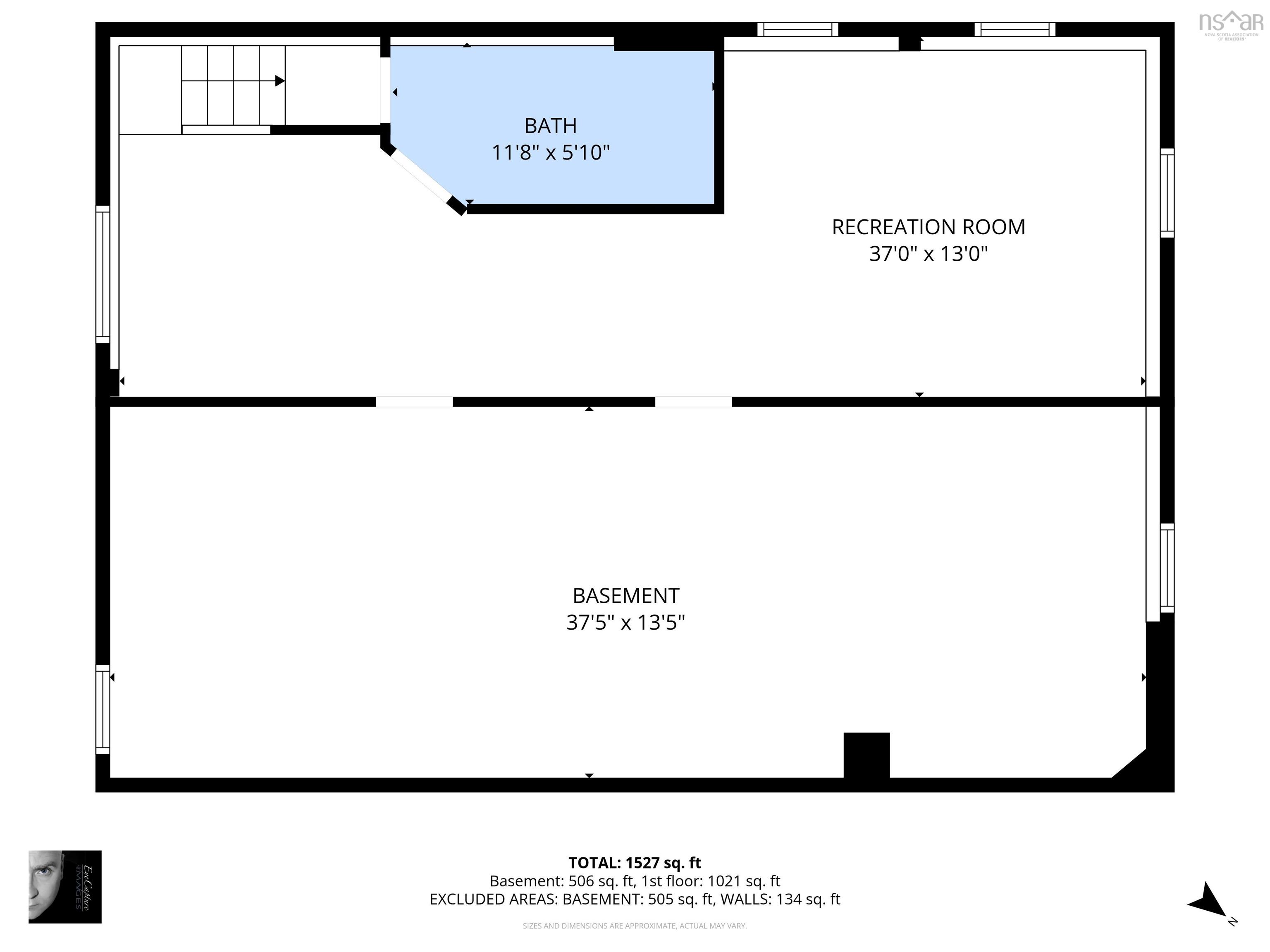
BasementFamily Room15.2 x 13.5
BasementOTHER21 x 13.5
BasementLaundry/Bath8.5 x 5.3
BasementStorage18 x 11.6
BasementUtility17 x 11.6


Schools.

TypeName
Elementary SchoolCrichton Park Elementary School
Middle SchoolBicentennial School
High SchoolBicentennial School
Elementary School (Fr. Imm.)Shannon Park Elementary School
Middle School (Fr. Imm.)Dartmouth South Academy
High School (Fr. Imm.)Dartmouth High School

contact the agent.

Nas Klayme
(902) 877-2122
nas@klayme.com

Nas has been a licensed REALTOR® since 2003. Nas enjoys the challenge of matching people to their dream homes.

Nas Klayme.

REALTOR ®
RE/MAX nova
(902) 877-2122
nas@klayme.com

Similar Listings.