(902) 877-2122
Single Family

240 281 Windmill Road, Dartmouth, NS (MLS® 202601539).

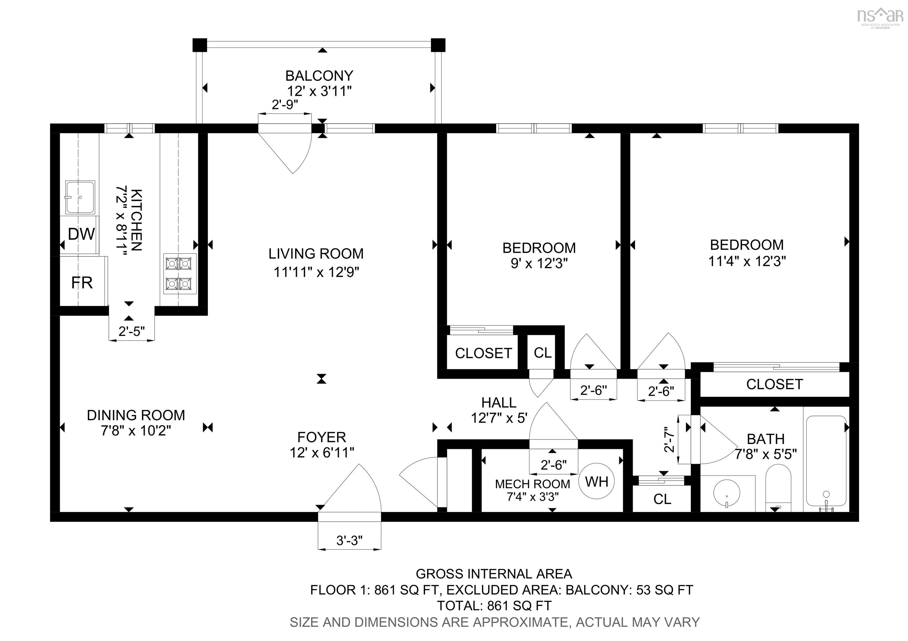
240 281 Windmill Road, Dartmouth, NS (MLS® 202601539): Welcome to 281 Windmill Road! A well-managed, pet-friendly condominium community in one of Dartmouth’s most convenient and commuter-friendly locations. This bright and carpet-free 2-bedroom unit is quietly positioned on the interior, second floor of the building, offering a peaceful living experience with excellent year-round comfort. Inside, the layout is functional and appealing, with a spacious living and dining area, an efficient kitchen, and two well-sized bedrooms. The carpet-free design enhances durability and ease of maintenance, making the condo ideal for both personal use and long-term investment. Residents benefit from heated underground parking, elevator access, and a property management team known for keeping the building in great condition. For investors, the management team can even handle rentals on your behalf, providing a streamlined, hands-off option for those seeking reliable income in a high-demand area. Located minutes from Downtown Dartmouth, the Halifax Ferry, Albro Lake, shopping, recreation, and major transit routes, this condo offers the perfect balance of lifestyle, convenience, and value. Whether you’re a first-time buyer, downsizer, or investor, this unit is an opportunity worth considering.

Directions
Windmill Rd-on right coming from MacKay Bridge, on left coming from MacDonald Bridge.

Listing Courtesy of: Coldwell Banker Maritime Realty

$284,900
MLS®
202601539
PID
40407843
List Price
$284,900
Type
Condominium
Style
Condo Apartment
Sewer
Municipal
Building Age
40
Foundation
Poured Concrete
Exterior
Brick
Flooring
Laminate, Tile, Vinyl
MLA
814 ft2
TLA
814 ft2
Bedrooms
2
Bathrooms
1
Water
Municipal

Utilities

  • Cable
  • Electricity
  • High Speed Internet
  • Telephone

Features

  • Balcony
  • Elevator

Community Features

  • Park
  • Place of Worship
  • Public Transit
  • School Bus Service
  • Shopping

Rooms.

LevelTypeDimensions
Main FloorFoyer12 x 6.11
Main FloorLiving Room11.11 x 12.9
Main FloorDining Room7.8 x 10.2
Main FloorKitchen7.2 x 8.11
Main FloorBedroom9 x 12.3
Main FloorPrimary Bedroom11.4 x 12.3
Main FloorBath 17.8 x 5.5
Main FloorStorage7.4 x 3.3


Schools.

TypeName
Elementary SchoolHarbour View Elementary School
Middle SchoolJohn Martin Junior High School
High SchoolJohn Martin Junior High School
Elementary School (Fr. Imm.)Shannon Park Elementary School
High School (Fr. Imm.)Dartmouth High School

contact the agent.

Nas Klayme
(902) 877-2122
nas@klayme.com

Nas has been a licensed REALTOR® since 2003. Nas enjoys the challenge of matching people to their dream homes.

Nas Klayme.

REALTOR ®
RE/MAX nova
(902) 877-2122
nas@klayme.com