(902) 877-2122
Single Family

345 Whitehead Road, Harrietsfield, NS (MLS® 202608261).

345 Whitehead Road, Harrietsfield, NS (MLS® 202608261): Tucked away at the end of a quiet road in the sought-after Sambro-Williamswood-Spryfield loop, 345 Whitehead Road offers that rare blend of privacy, space, and everyday convenience, all just 7 minutes to the amenities of Spryfield and moments from the local elementary school. Set on a beautifully treed lot with mature landscaping, this home has been thoughtfully curated with high-end finishes and a level of detail you can feel the moment you step inside. Sunlight pours through large windows into the open-concept kitchen and living area, creating a bright and welcoming space that’s equally suited for quiet mornings or entertaining family and friends. With 4 bedrooms and 2 full bathrooms, the layout is both functional and inviting, while the true standout is the step-down primary suite. Designed as a peaceful retreat, this space features patio doors leading directly to the expansive deck and backyard, offering a seamless connection to nature and the perfect place to unwind. Downstairs, the fully finished basement adds incredible versatility with a home gym, sauna, ample storage, and flexible space for a home office, rec room, or whatever best suits your lifestyle. If you’ve been searching for a home that feels tucked away yet connected, refined yet comfortable, this one is truly something special.

Directions
old sambro road, turn on to Whitehead Rd home on the right near end of road

Inclusions
appliances

Exclusions
hot tub

Listing Courtesy of: RE/MAX Nova (Halifax)

$649,900
MLS®
202608261
PID
40073355
List Price
$649,900
Type
Single Family
Style
Detached
Sewer
Septic
Building Age
52
Foundation
Poured Concrete
Exterior
Vinyl
Flooring
Hardwood, Laminate, Tile, Vinyl
MLA
1,674 ft2
TLA
3,018 ft2
Bedrooms
4
Bathrooms
2
Water
Drilled Well

Utilities

  • Cable
  • Electricity
  • High Speed Internet
  • Telephone

Features

  • Wheelchair Access
  • Electric Fireplace
  • See Remarks
  • Sump Pump
  • Gazebo

Community Features

  • Beach
  • Marina
  • Park
  • Place of Worship
  • Playground
  • Recreation Center
  • School Bus Service

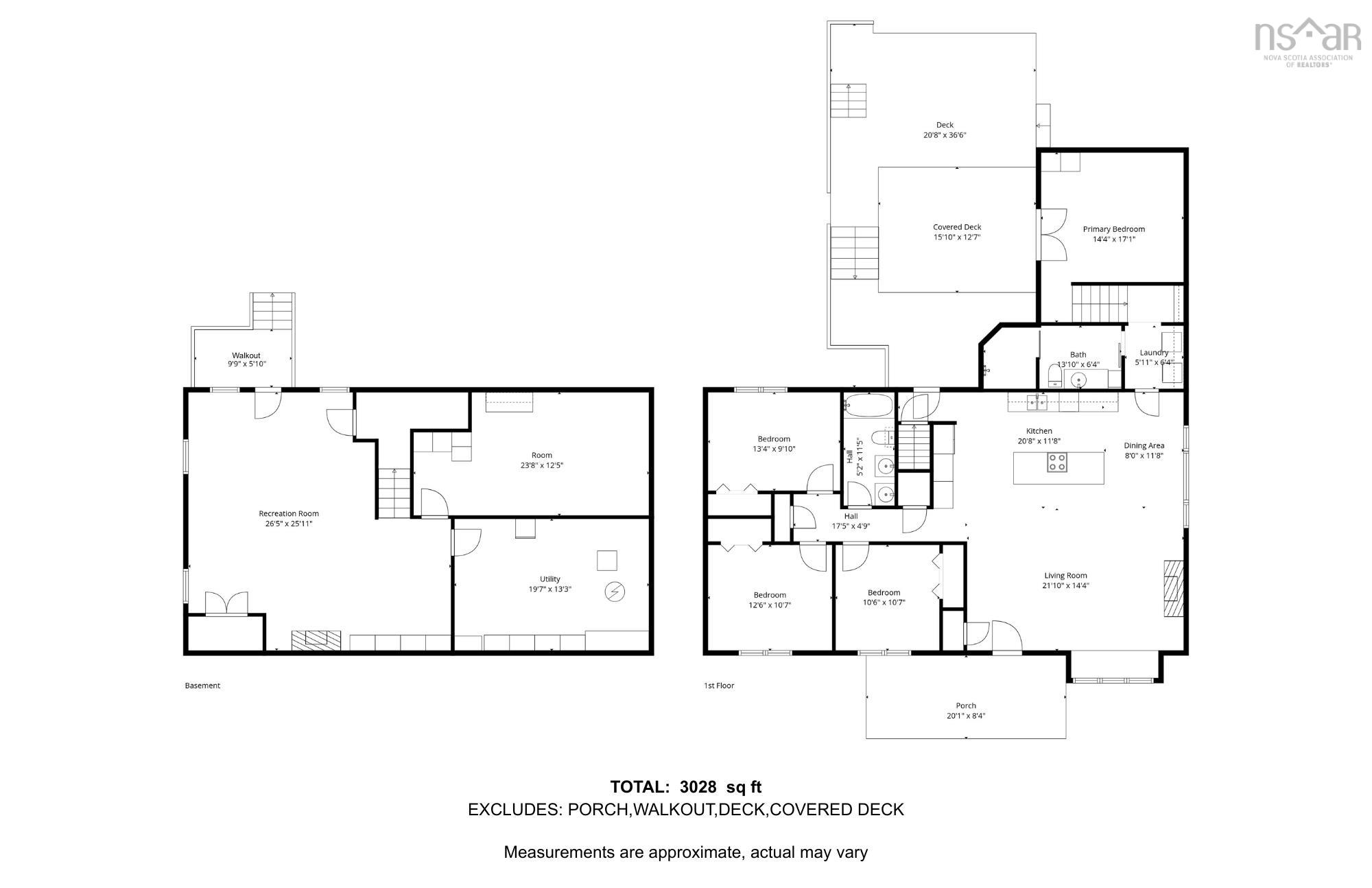
Rooms.

LevelTypeDimensions
Main FloorLiving Room21'10'' x 14'4''
Main FloorKitchen20'8'' x 11'8''
Main FloorDining Nook8'0'' x 11'8''
Main FloorBedroom10'6'' x 10'7''
Main FloorBedroom12'6'' x 10'7''
Main FloorBedroom13'4'' x 9'10''
Main FloorBath 15'2'' x 11'5''
Main FloorBath 213'10'' x 6'4''
Main FloorLaundry5'11'' x 6'4''
Main FloorPrimary Bedroom14'4'' x 17'1''
LevelTypeDimensions
BasementOTHER23'8'' x 12'5''
BasementUtility19'7'' x 13'3''
BasementRec Room26'5'' x 25'11''


Schools.

TypeName
Elementary SchoolHarrietsfield Elementary School
Middle SchoolHerring Cove Junior High School
High SchoolHerring Cove Junior High School
Middle School (Fr. Imm.)Herring Cove Junior High School
High School (Fr. Imm.)JL Ilsely High School

contact the agent.

Nas Klayme
(902) 877-2122
nas@klayme.com

Nas has been a licensed REALTOR® since 2003. Nas enjoys the challenge of matching people to their dream homes.

Nas Klayme.

REALTOR ®
RE/MAX nova
(902) 877-2122
nas@klayme.com

Similar Listings.