(902) 877-2122
Single Family

359 Seligs Road, Prospect, NS (MLS® 202607761).

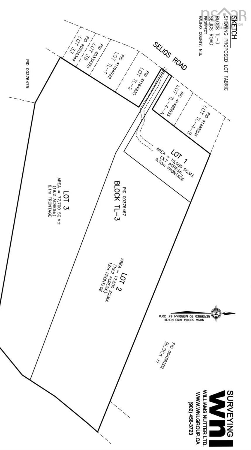
359 Seligs Road, Prospect, NS (MLS® 202607761): Welcome to this beautifully updated 14-year-old home set on a private 3.7-acre lot with stunning views of Prospect Bay. Offering an impressive 5,646 sq. ft. of living space, this 5-bedroom, 4-bathroom property is thoughtfully designed for modern living, including a fully self contained in-law suite, perfect for multi-generational families or added income potential. Efficiency meets comfort with three sources of heat and a fully solar powered system, keeping monthly utility costs exceptionally low. The main living space is both warm and inviting, featuring vaulted ceilings and a striking floor to ceiling stone fireplace. The kitchen is well appointed with a walk-in pantry, while the spacious primary suite offers a walk-in closet and a beautiful ensuite bath. Designed for both relaxation and entertaining, the lower level boasts an expansive gym, bar, and theatre area, creating the ultimate recreational retreat. Step outside to enjoy the hot tub, outdoor firepit with multiple seating areas, greenhouse, and generous green space, all enhancing the home’s peaceful, lifestyle focused setting. Extensive upgrades have been completed, including additional heat pumps, a new on demand boiler system, and a water softener with reverse osmosis. A newly built, double-detached heated garage with two bay doors and a workshop area adds exceptional functionality. This is truly a turnkey property with no detail overlooked, offering the charm of country living just minutes from the city, and the rare benefit of little to no monthly heating or power costs. Note: The home currently sits on a larger parcel, with an approved subdivision in place to retain 3.7 acres with the home. Subdivision to be completed prior to closing. Two additional lots of 19.2 acres a piece will also be available for purchase.

Directions
Prospect Road to Lower Prospect Bay Road to Seligs Road.

Inclusions
See list of inclusions (Documents Tab)

Exclusions
Pool Table and Pool Table lighting

Listing Courtesy of: Sutton Group Professional Realty

$1,199,500
MLS®
202607761
PID
00376467
List Price
$1,199,500
Type
Single Family
Style
Detached
Sewer
Septic
Building Age
14
Foundation
Poured Concrete
Exterior
Vinyl
Flooring
Hardwood, Laminate, Tile
MLA
3,285 ft2
TLA
5,646 ft2
Bedrooms
5
Bathrooms
4
Water
Drilled Well

Utilities

  • Cable
  • Electricity
  • High Speed Internet
  • Telephone

Features

  • Air Exchanger
  • Alarm System
  • Secondary Suite
  • Hot Tub
  • Wood Stove(s)
  • Electric Fireplace
  • Wood Fireplace

Community Features

  • Beach
  • Golf Course
  • Marina
  • Park
  • Place of Worship
  • Playground
  • Recreation Center
  • School Bus Service

Rooms.

LevelTypeDimensions
Main FloorFoyer12' x 7'.10" /95"
Main FloorFamily Room18'.1" x 23'.5'' -jog /Open
Main FloorKitchen18'.5' x 11'.9'' /46.8
Main FloorDining Room17'.1'' x 11'.5'' /59''
Main FloorLaundry10'.1'' x 7' /N/A
Main FloorPrimary Bedroom15'.1'' x 15'.2'' /40"
Main FloorStorage6' x 10'.7" /40"
Main FloorEnsuite Bath 114'.7'' x 6'.1'' /N/A
Main FloorBedroom11'.5'' x 10'.9'' /40"
Main FloorBedroom11'.5'' x 10'.7'' /40''
Main FloorBedroom10'.8'' x 11'.5'' /40"
Main FloorEat In Kitchen13'.8" x 8'.4" /Open
Main FloorBath 38'.1" x 7'.11" - jog /45"
Main FloorBedroom11'.1" x 9'.9" /45"
LevelTypeDimensions
Lower LevelBath 214'.6'' x 5'.7'' /40"
Lower LevelRec Room14'.7'' x 22'.9'' /Open
Lower LevelGames Room36'.11'' x 17'.1" /Open
Lower LevelGreat Room32'.2'' x 14'.4'' /Open
Lower LevelStorage3'.1'' x 9'.5'' /45"
Lower LevelUtility16'.1" x 14'.4" /Open
Lower LevelWorkshop22'.6" x 15'.9" + Jog /Open
Lower LevelWorkshop22'.6" x 15'.9" + Jog /Open
Lower LevelBath 410'.9" x 12'.3" /Open


Schools.

TypeName
Elementary SchoolAtlantic Memorial - Terence Bay Elementary School (Atlantic Memorial)
Middle SchoolBrookside Junior High School
High SchoolBrookside Junior High School
High School (Fr. Imm.)Halifax West High School

contact the agent.

Nas Klayme
(902) 877-2122
nas@klayme.com

Nas has been a licensed REALTOR® since 2003. Nas enjoys the challenge of matching people to their dream homes.

Nas Klayme.

REALTOR ®
RE/MAX nova
(902) 877-2122
nas@klayme.com

Similar Listings.