(902) 877-2122
Single Family

3752 Memorial Drive, Halifax, NS (MLS® 202607830).

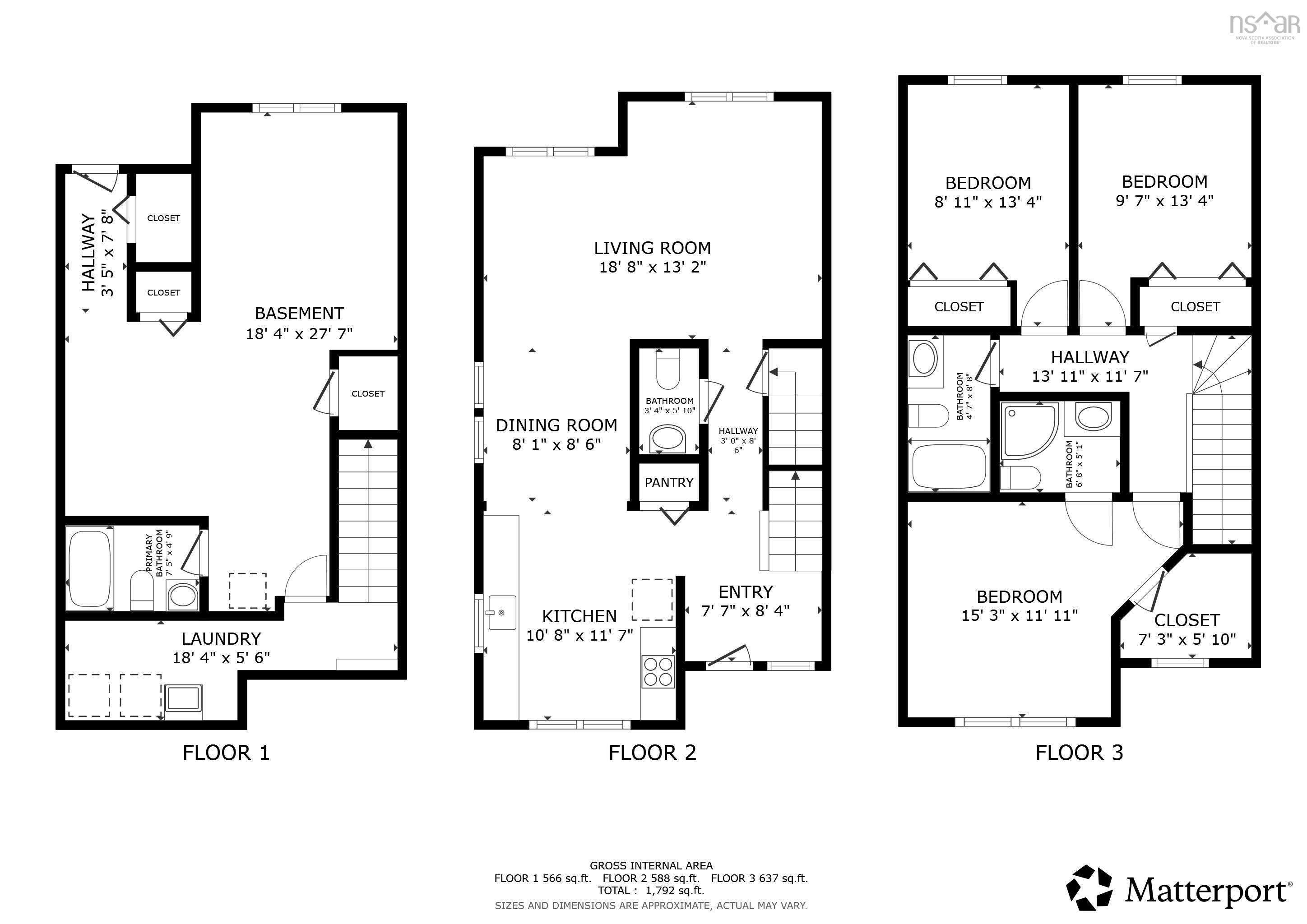
3752 Memorial Drive, Halifax, NS (MLS® 202607830): Your North End home awaits at 3752 Memorial Drive! This spacious end-unit townhome offers exceptional convenience, with easy bridge access and just a short trip to anywhere on the peninsula. Plus, enjoy Bedford Basin views and evening sunsets from the main and upper levels! The main floor features an open layout with flexible options for living, dining, and office space, along with a private powder room off the front foyer, which also includes a dedicated closet. Upstairs, you’ll find a full bathroom plus three sizeable bedrooms, including a generous primary with a large walk-in closet and a private 3-piece ensuite. The lower level includes a full bathroom, dedicated laundry area, and a large family or rec room that could be converted into a fourth bedroom, as well as walkout access to the yard. The home is efficiently heated and cooled with a ducted heat pump. Recent updates include roof shingles (2022), water heater (2025), and flooring in the upstairs bedrooms (2026). Book your private showing or visit the open house on Sunday, April 19th!

Directions
Lady Hammond to Memorial

Inclusions
All appliances, central vac and attachments.

Listing Courtesy of: Sutton Group Professional Realty

$598,000
MLS®
202607830
PID
41096983
List Price
$598,000
Type
Single Family
Style
Townhouse
Sewer
Municipal
Building Age
23
Foundation
Poured Concrete
Exterior
Brick, Vinyl
Flooring
Carpet, Laminate, Vinyl
MLA
1,328 ft2
TLA
1,980 ft2
Bedrooms
3
Bathrooms
4
Water
Municipal

Utilities

  • Cable
  • Electricity
  • High Speed Internet
  • Telephone

Features

  • Central Vacuum
  • Ensuite Bath

Community Features

  • Playground
  • Public Transit
  • Recreation Center
  • Shopping

Rooms.

LevelTypeDimensions
Main FloorFoyer7'.8" x 5'.6" /35"
Main FloorKitchen10'.2" x 11'.1" /35"
Main FloorDining Room7'.10" x 10' /Open
Main FloorLiving Room18'.4" x 13' - jog /35"
Main FloorBath 13'.2" x 5'.11" /35"
LevelTypeDimensions
2nd LevelPrimary Bedroom10'.11" x 12' + Jog /36"
2nd LevelEnsuite Bath 16'.5" x 5'.2" /36"
2nd LevelBedroom9'.2" x 10'.8" /36"
2nd LevelBedroom9'.2" x 10'.8" /36"
2nd LevelBath 24'.11" x 8'.8" /36"
LevelTypeDimensions
BasementFamily Room17'.11" x 21'.9"irreg-Jog/open
BasementBath 37'.2" x 4'.11" /Open
BasementLaundry9'.4" x 5'.9" /Open


Schools.

TypeName
Elementary SchoolSt Stephen's Elementary School
Middle SchoolHighland Park Junior High School
High SchoolHighland Park Junior High School
Elementary School (Fr. Imm.)St Joseph's - Alexander Mckay Elementary School
Middle School (Fr. Imm.)Oxford School
High School (Fr. Imm.)Citadel High School

contact the agent.

Nas Klayme
(902) 877-2122
nas@klayme.com

Nas has been a licensed REALTOR® since 2003. Nas enjoys the challenge of matching people to their dream homes.

Nas Klayme.

REALTOR ®
RE/MAX nova
(902) 877-2122
nas@klayme.com

Similar Listings.