(902) 877-2122
Single Family

5141 561 Bondi Drive, Sackville, NS (MLS® 202510005).

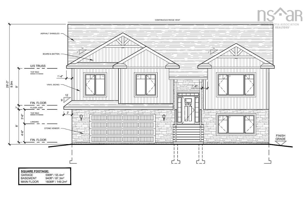
5141 561 Bondi Drive, Sackville, NS (MLS® 202510005): Welcome to the market and currently under construction, one of Marchand Homes newest plans, a stunning executive split-entry residence nestled in the sought-after community of Indigo Shores. This is a remarkable new construction, family-focused home that is absolutely packed with upgrades. Indigo Shores is a vibrant and rapidly expanding neighbourhood in Middle Sackville, offering a mix of lakefront and lake-access properties designed to suit a variety of lifestyles. With quick highway access, this subdivision is minutes from all amenities and a 25-minute drive to Downtown Halifax. Discover the perfect blend of modern living and natural serenity in Indigo Shores—a community you’ll love to call home.

Directions
Ns Hwy 1 to exit 2A, to roundabout to Margeson Drive, to Midnight Run, to Gaspereau, to Bondi.

Listing Courtesy of: Sutton Group Professional Realty

$844,900
MLS®
202510005
PID
41519380
List Price
$844,900
Type
Single Family
Style
Detached
Sewer
Septic
Building Age
0
Foundation
Poured Concrete
Exterior
Stone, Vinyl
Flooring
Laminate, Tile
MLA
1,606 ft2
TLA
2,546 ft2
Bedrooms
4
Bathrooms
3
Water
Drilled Well

Utilities

  • Cable
  • Electricity
  • High Speed Internet
  • Telephone

Features

  • Air Exchanger
  • Ensuite Bath
  • HRV (Heat Rcvry Ventln)
  • Electric Fireplace

Community Features

  • Park
  • Public Transit
  • School Bus Service

Rooms.

LevelTypeDimensions
Main FloorKitchen12' x 17' /48"
Main FloorDining Room15' x 16' /48"
Main FloorLiving Room18' x 15' /48"
Main FloorPrimary Bedroom14'.3" x 15'.9" /48"
Main FloorBedroom10'.8" x 10'.10" /48"
Main FloorBedroom10'.88" x 11'.4" /48"
Main FloorBath 17'.4" x 9'.1" /48"
Main FloorEnsuite Bath 19'.10" x 10' /na
LevelTypeDimensions
BasementMud Room11'.3" x 6'.8" /oc
BasementBath 29'.1" x 7'.2" /oc
BasementBedroom15'.8" x 12'.6" /oc
BasementRec Room23'.6" x 17'.1" /oc


Schools.

TypeName
Elementary SchoolSackville Heights Elementary School
Middle SchoolSackville Heights Junior High School
High SchoolSackville Heights Junior High School

contact the agent.

Nas Klayme
(902) 877-2122
nas@klayme.com

Nas has been a licensed REALTOR® since 2003. Nas enjoys the challenge of matching people to their dream homes.

Nas Klayme.

REALTOR ®
RE/MAX nova
(902) 877-2122
nas@klayme.com

Similar Listings.