(902) 877-2122
Single Family

6 Shadebush Walk, Upper Sackville, NS (MLS® 202521201).

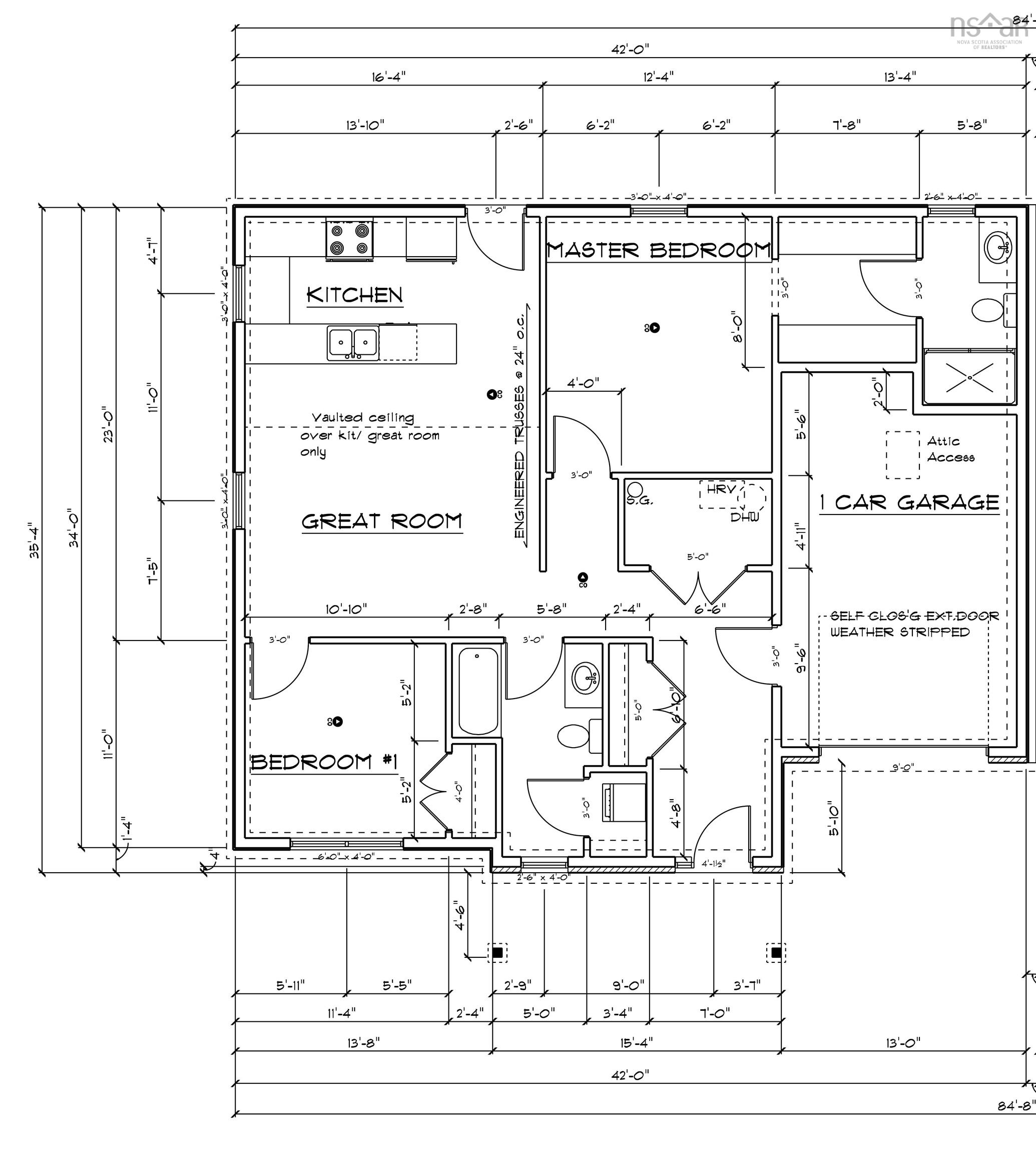
6 Shadebush Walk, Upper Sackville, NS (MLS® 202521201): Welcome to Meadow Ridge Estates – modern bungalow living at its finest!Just 20 minutes from downtown Halifax and 15 minutes from the airport, this thoughtfully designed homeoffers both convenience and comfort close to all essential amenities. Step inside to find a bright, openconcept main living area with vaulted ceilings and a spacious kitchen featuring abundant cabinetry. Theprimary suite includes a generous walk-through closet leading to a private ensuite with a 5 foot shower.A second full bathroom, guest bedroom, main floor laundry, and a large entryway add to the home’spracticality. Enjoy outdoor living with a stamped concrete front porch and rear deck, perfect forrelaxing or entertaining. Additional highlights include a single-car garage and an energy-efficientductless heat pump. This home comes complete with HST included in the price and peace of mind provided byan 8-Year LUX Home Warranty.

Directions
Sackville Drive to Buttercup Grove to Wineberry Way, right onto Shadebush Walk

Listing Courtesy of: Keller Williams Select Realty

$539,900
MLS®
202521201
PID
41528571
List Price
$539,900
Type
Single Family
Style
Semi-Detached
Sewer
Community
Building Age
0
Foundation
Slab
Exterior
Stone, Vinyl
Flooring
Ceramic, Laminate
MLA
1,118 ft2
TLA
1,118 ft2
Bedrooms
2
Bathrooms
2
Water
Community, Dug, Shared

Utilities

  • Cable
  • Electricity
  • High Speed Internet
  • Telephone

Features

  • Air Exchanger
  • Ensuite Bath
  • HRV (Heat Rcvry Ventln)

Community Features

  • Park
  • School Bus Service
  • Shopping

Rooms.

LevelTypeDimensions
Main FloorKitchen15.5x8
Main FloorGreat Room15.5x15
Main FloorPrimary Bedroom12.4x13.2
Main FloorBedroom10.10x11
Main FloorLaundry4x3.4
Main FloorUtility4.11x7
Main FloorFoyer6.6x10.9
Main FloorOTHERgarage 13x20-jog


Schools.

TypeName
Elementary SchoolHarry R Hamilton Elementary School
Middle SchoolSackville Heights Junior High School
High SchoolSackville Heights Junior High School
Middle School (Fr. Imm.)Sackville Heights Junior High School
High School (Fr. Imm.)Millwood High School

contact the agent.

Nas Klayme
(902) 877-2122
nas@klayme.com

Nas has been a licensed REALTOR® since 2003. Nas enjoys the challenge of matching people to their dream homes.

Nas Klayme.

REALTOR ®
RE/MAX nova
(902) 877-2122
nas@klayme.com

Similar Listings.