(902) 877-2122
Single Family

80 Grindstone Drive, Halifax, NS (MLS® 202603903).

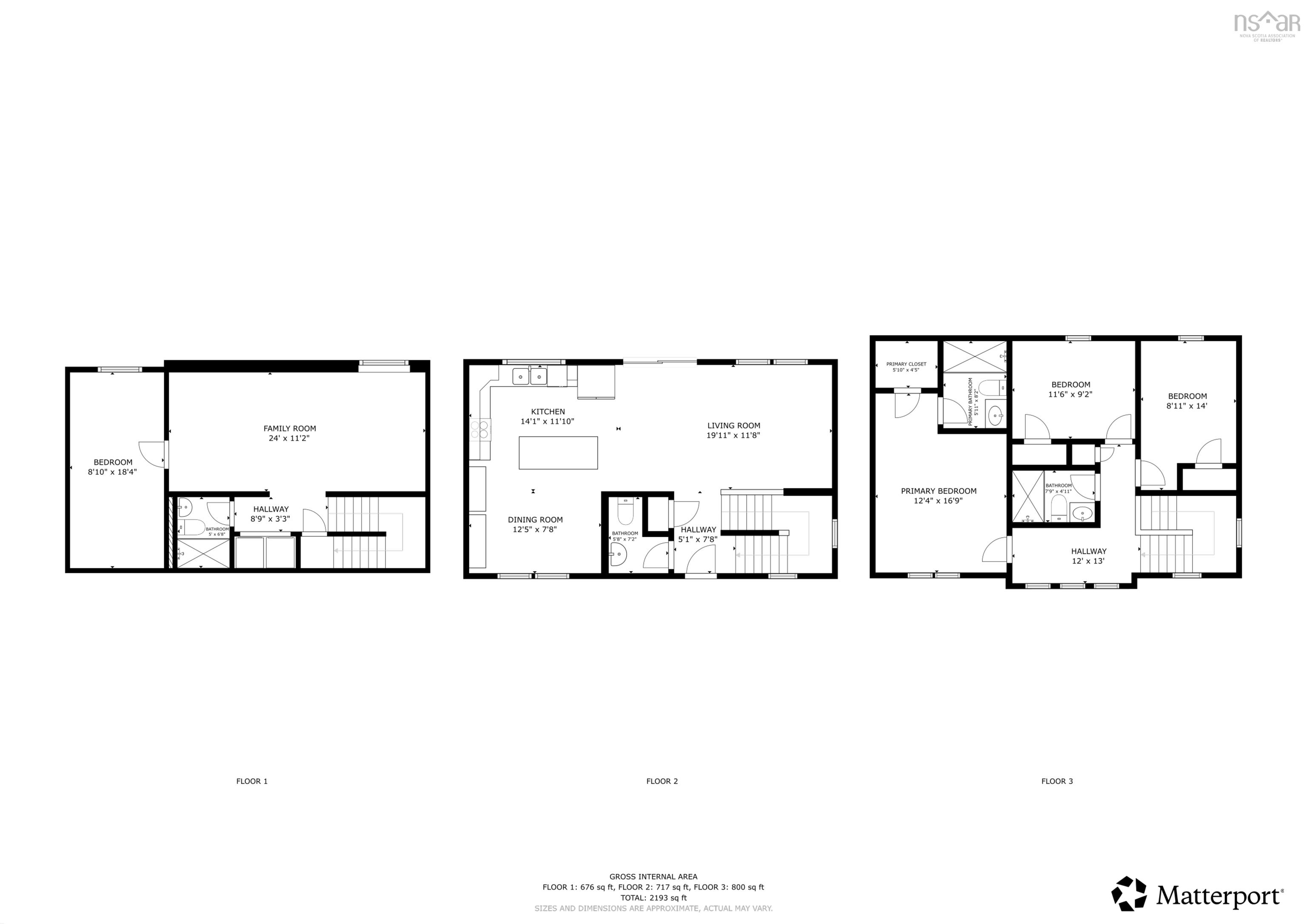
80 Grindstone Drive, Halifax, NS (MLS® 202603903): Welcome to 80 Grindstone Drive in the desirable community of Kidston Estates. This well-maintained two-storey home offers functional living space, thoughtful updates, and a private backyard perfect for everyday living and entertaining. The main level features a spacious layout with a large kitchen complete with 7x3 island, professionally painted cabinetry, and a dining area that flows into the bright living room. A shiplap feature wall adds character, while the sliding patio door leads to a back deck with privacy walls overlooking the fully fenced backyard with gate and storage shed. The main level is completed with a convenient powder room. Upstairs you’ll find three bedrooms, including the large primary suite with a walk-in closet and ensuite featuring a tub/shower combination. A second full bathroom completed the upper level. The fully finished basement provides excellent additional living space with a large rec room offering room for a second family area and kids’ play space, a fourth bedroom ideal for guests or a home office, a third full bathroom, laundry area, and storage under the stairs. Additional upgrades throughout include 3 ductless mini-split heatpumps, new flooring on the main level and basement, a new hot water tank (2025), new stove and dishwasher (2025), and updated toilets in the powder room and primary ensuite (2026). Located in a quiet community just minutes from downtown Halifax, this home offers convenient access to schools, rec centre, grocery stores, and major highways, making everyday commuting and errands effortless.

Directions
Northwest Arm Dr. to Old Sambro Rd. to Rockingstone Road to Beach Stone (Kidston Estates) to Grindstone Dr.

Listing Courtesy of: Sutton Group Professional Realty

$650,000
MLS®
202603903
PID
41188178
List Price
$650,000
Type
Single Family
Style
Detached
Sewer
Municipal
Building Age
16
Foundation
Poured Concrete
Exterior
Vinyl
Flooring
Laminate, Tile
MLA
1,428 ft2
TLA
2,100 ft2
Bedrooms
4
Bathrooms
4
Water
Municipal

Utilities

  • Cable
  • Electricity
  • High Speed Internet
  • Telephone

Features

  • Ensuite Bath
  • HRV (Heat Rcvry Ventln)

Community Features

  • Park
  • Place of Worship
  • Playground
  • Public Transit
  • Recreation Center
  • School Bus Service
  • Shopping

Rooms.

LevelTypeDimensions
Main FloorLiving Room19'.11" x 11'.8" /na
Main FloorKitchen14'.1" x 11'.10" /na
Main FloorDining Room12'.5" x 7'.8" /na
Main FloorBath 17'.2" x 5'.8" /na
Main FloorOTHER(Covered Deck)
Main FloorOTHER(Deck)
LevelTypeDimensions
2nd LevelPrimary Bedroom16'.9" z 12'.4" /50
2nd LevelOTHER(WIC)5'.10" x 4'.5" /na
2nd LevelEnsuite Bath 18'.2" x 5'.11" /na
2nd LevelBedroom11'.6" x 9'.2" /48
2nd LevelBedroom14' x 8'.11" /48
2nd LevelBath 27'.9" x 4'.11" /48
LevelTypeDimensions
BasementFamily Room24' x 11'.2" /oc
BasementBedroom18'.4" x 8'.10" /oc
BasementBath 36'.8" x 5' /39
BasementLaundry(Nook/Closet) /39
BasementOTHER(Storage) /oc


Schools.

TypeName
Elementary SchoolElizabeth Sutherland School
Middle SchoolElizabeth Sutherland School
High SchoolElizabeth Sutherland School
Elementary School (Fr. Imm.)Chebucto Heights Elementary School
Middle School (Fr. Imm.)Elizabeth Sutherland School
High School (Fr. Imm.)JL Ilsely High School

contact the agent.

Nas Klayme
(902) 877-2122
nas@klayme.com

Nas has been a licensed REALTOR® since 2003. Nas enjoys the challenge of matching people to their dream homes.

Nas Klayme.

REALTOR ®
RE/MAX nova
(902) 877-2122
nas@klayme.com

Similar Listings.