(902) 877-2122
Single Family

910 60 Walter Havill Drive, Halifax, NS (MLS® 202604739).

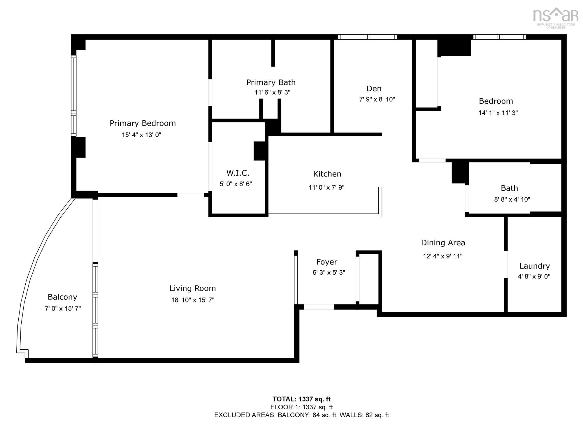
910 60 Walter Havill Drive, Halifax, NS (MLS® 202604739): Welcome to the Waterton, an upscale high rise in Stone Ridge Development minutes from downtown Halifax! Unit 910 is a 2-bedroom, 2-bathroom corner unit, offering one of the largest floor plans in the building. This west-facing condo is bright and spacious and has been thoughtfully updated with custom window coverings, additional lighting, new hot water tank and brand-new appliances; including the fridge, over-the-range microwave, washer and dryer (in-unit laundry). The primary bedroom is spacious with a walk-in-closet and private ensuite with dual vanity. The second bedroom is located on the opposite side of the unit and both rooms allow for views of long lake park. There is also a den with lots of natural light that could be used as an office. This building uses geothermal heating and cooling and offers underground parking and storage included in the condo fee.

Directions
Osborne to Walter Havill

Inclusions
All Appliances, Custom Window Blinds

Listing Courtesy of: RE/MAX Nova (Halifax)

$489,900
MLS®
202604739
PID
41335845
List Price
$489,900
Type
Condominium
Style
Condo Apartment
Sewer
Municipal
Building Age
13
Foundation
Poured Concrete
Exterior
Brick, Concrete, Stone
Flooring
Tile, Vinyl
MLA
1,337 ft2
TLA
1,337 ft2
Bedrooms
2
Bathrooms
2
Water
Municipal

Utilities

  • Cable
  • Electricity
  • High Speed Internet
  • Telephone

Features

  • Elevator
  • Ensuite Bath
  • HRV (Heat Rcvry Ventln)
  • Wheelchair Access
  • Air Jet Tub

Community Features

  • Park
  • Playground
  • Public Transit

Rooms.

LevelTypeDimensions
Main FloorFoyer6'3"x5'3"
Main FloorLiving Room18'10"x15'7"
Main FloorKitchen11'x7'9"
Main FloorDining Room12'4"x9'11"
Main FloorBath 18'8"x4'10"
Main FloorBedroom14'1"x11'3"
Main FloorDen/Office7'9"x8'10"
Main FloorPrimary Bedroom15'4"x13'
Main FloorEnsuite Bath 111'6"x8'3"
Main FloorOTHERWIC 5'x8'6"
Main FloorLaundry4'8"x9'

contact the agent.

Nas Klayme
(902) 877-2122
nas@klayme.com

Nas has been a licensed REALTOR® since 2003. Nas enjoys the challenge of matching people to their dream homes.

Nas Klayme.

REALTOR ®
RE/MAX nova
(902) 877-2122
nas@klayme.com

Similar Listings.