(902) 877-2122
Single Family

Lot 5099 454 Bondi Drive, Middle Sackville, NS (MLS® 202602900).

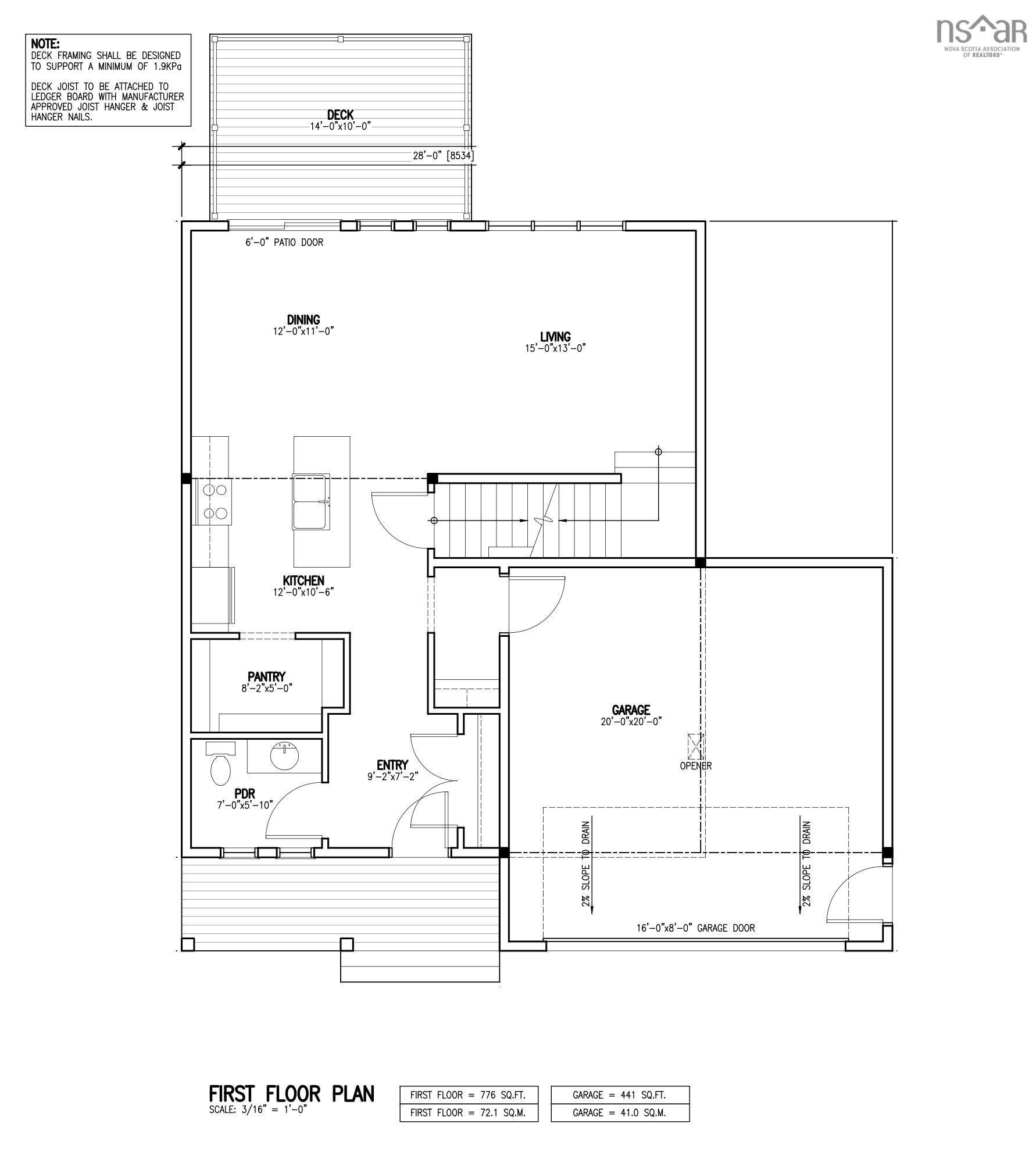
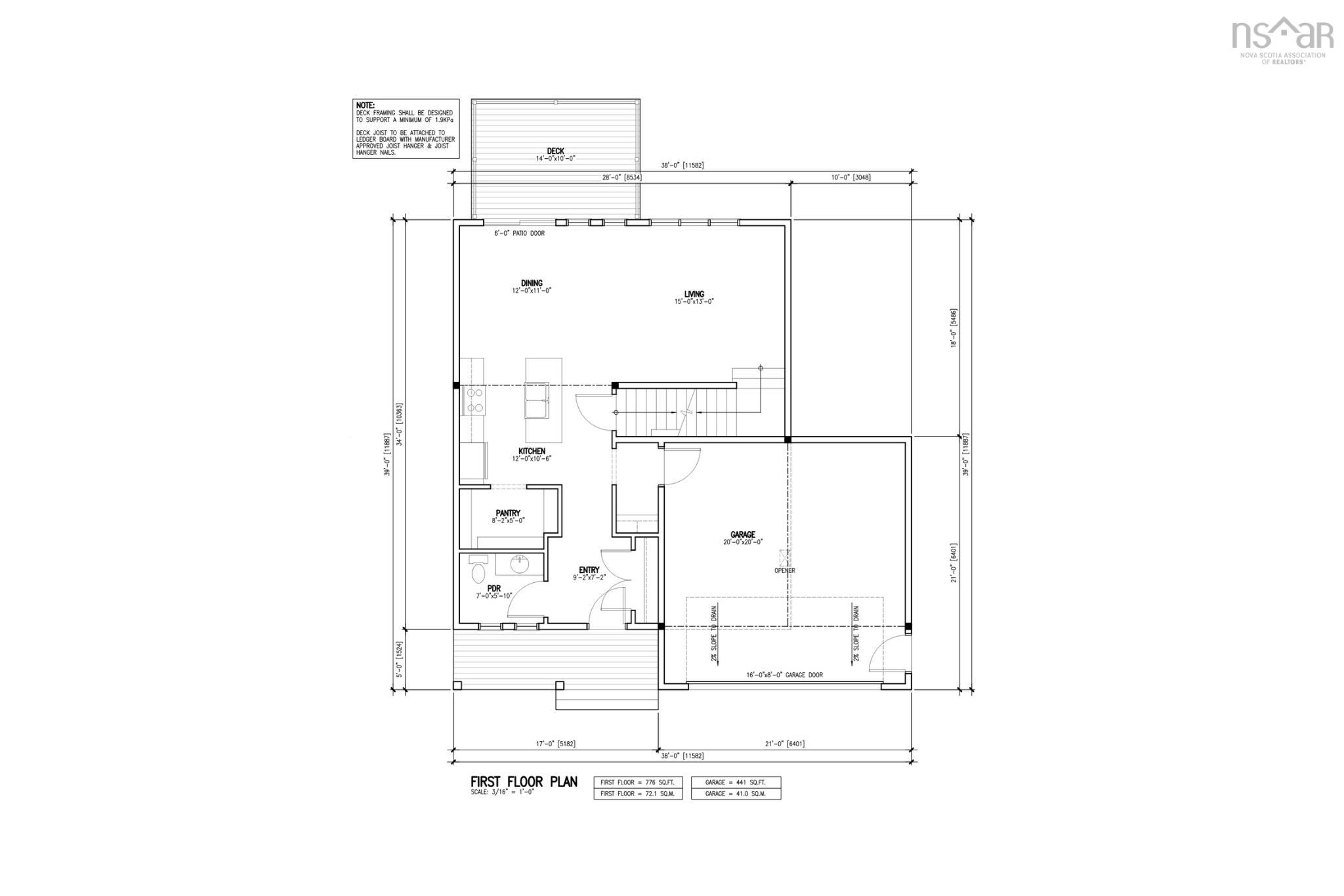
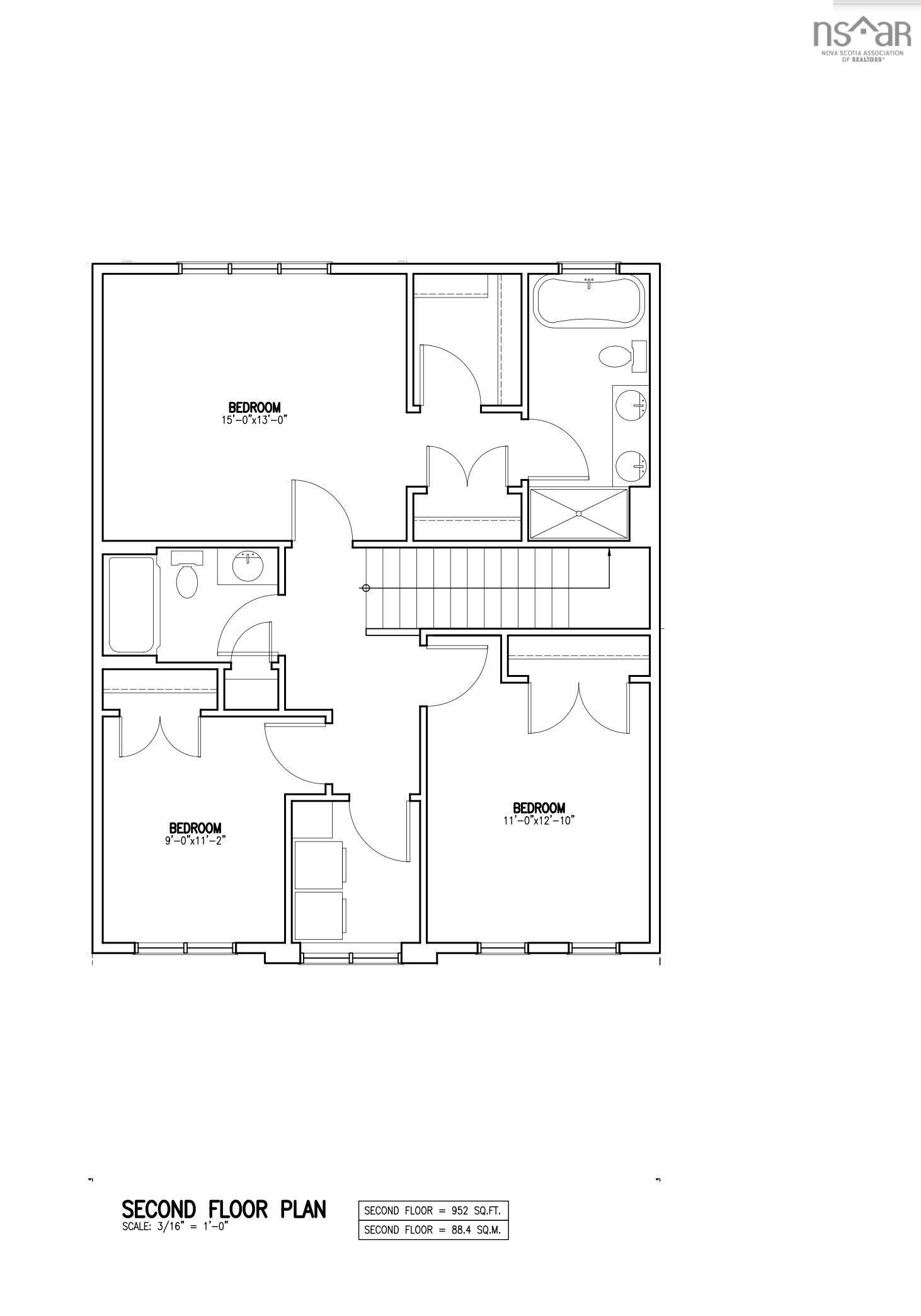
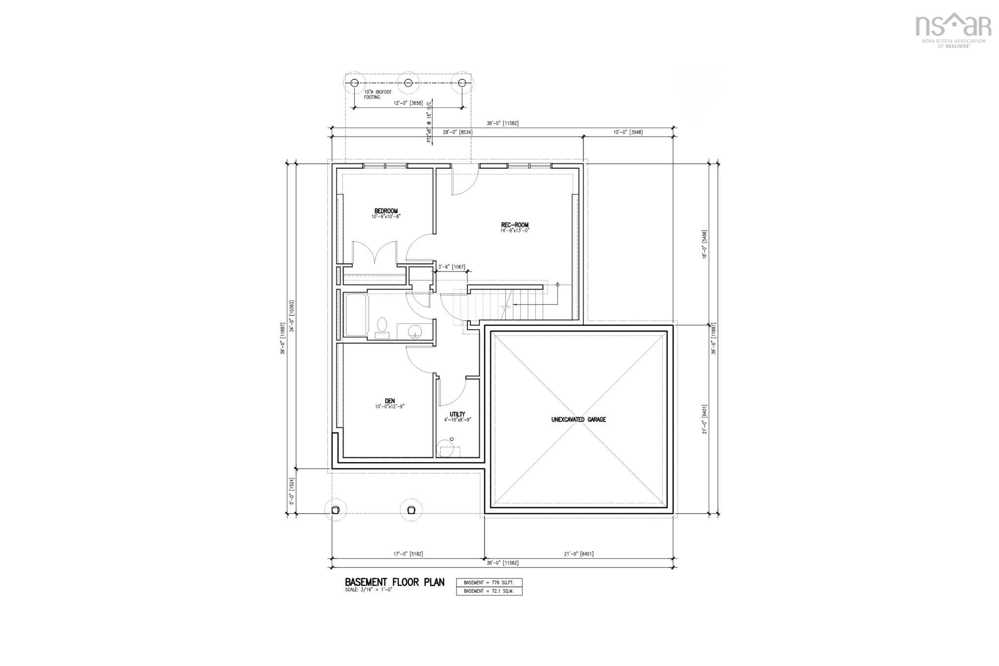
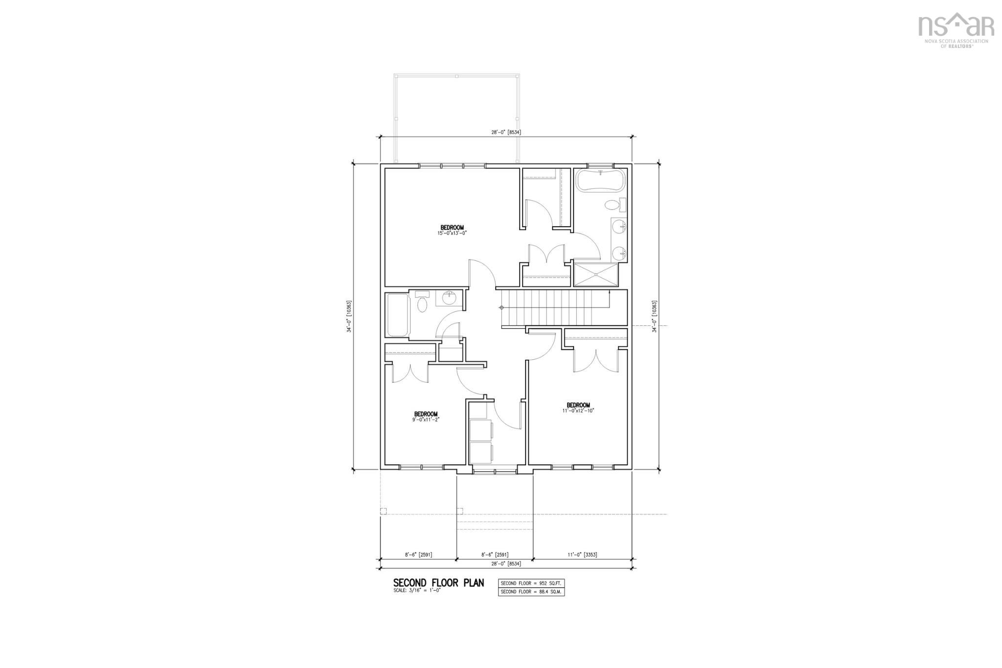
Lot 5099 454 Bondi Drive, Middle Sackville, NS (MLS® 202602900): Join us every Saturday and Sunday from 2-4 pm at our Model Home at 451 Zaffre Drive to view our beautiful selections and to discuss a potential new build for you. You've been asking for it, and here it is! Amara Developments is proud to introduce "The Ponderosa" - a spacious 3+1 bedroom, 3.5 bathroom 2-STORY HOME to its repertoire of exceptional new construction homes in majestic Indigo Shores, Middle Sackville. This exciting and modern design offers a perfect blend of contemporary style and function in an exciting new phase of the community. With a bright and airy layout and over 2,500 square feet of finished living space, this home is designed for those seeking open-concept, three-level living and a thoughtful floor plan for a growing family. Step inside and experience contemporary living, featuring clean lines, abundant natural light, and luxurious fixtures characteristic of the Builder. The main level features a large living room and dedicated dining space that flow seamlessly into the chef’s kitchen with its abundance of full-height cabinetry, sit-up island, and full walk-in pantry—ideal for both everyday living and entertaining. A kindly tucked away powder room and 20x20 attached double garage complete this compelling floor. The upper level hosts a glorious primary bedroom with TWO large closets and a spa-like 5PC ensuite that will be the delight of its parents. Two more large bedrooms, an additional full bath, and a dedicated laundry room complete this level. Downstairs, won't feel so "down" with its robust recreation room for the kiddos, 4th bedroom, full bath, and ...what's this?! A bonus den/games or storage room that can serve a multitude of purposes. The oversized garage provides enough space for parking, tools, seasonal gear, or recreational equipment.

Directions
Margeson Drive to Midnight Run to Gaspereau Run to Bondi Drive

Listing Courtesy of: Royal LePage Atlantic

$849,900
MLS®
202602900
PID
41519224
List Price
$849,900
Type
Single Family
Style
Detached
Sewer
Septic
Building Age
0
Foundation
Poured Concrete
Exterior
Aluminium Siding, Steel, Stone, Vinyl
Flooring
Ceramic, Laminate, Porcelain
MLA
1,728 ft2
TLA
2,504 ft2
Bedrooms
4
Bathrooms
4
Water
Drilled Well

Utilities

  • Cable
  • Electricity
  • High Speed Internet
  • Telephone

Rooms.

LevelTypeDimensions
Main FloorFoyer9'2 x 7'2
Main FloorBath 17' x 5'10
Main FloorKitchen12' x 10'6
Main FloorOTHERPantry- 8'2 x 5'
Main FloorDining Room12' x 11'
Main FloorLiving Room15' x 13'
LevelTypeDimensions
2nd LevelBedroom11' x 12'10
2nd LevelBedroom9' x 11'2
2nd LevelPrimary Bedroom15' x 13'
2nd LevelEnsuite Bath 15 pc
2nd LevelBath 24 pc
LevelTypeDimensions
Lower LevelRec Room14'8 x 13'
Lower LevelBath 33 pc
Lower LevelBedroom10'9 x 10'8
Lower LevelDen/Office10' x 12'9
Lower LevelUtility4'10 x 8'9

contact the agent.

Nas Klayme
(902) 877-2122
nas@klayme.com

Nas has been a licensed REALTOR® since 2003. Nas enjoys the challenge of matching people to their dream homes.

Nas Klayme.

REALTOR ®
RE/MAX nova
(902) 877-2122
nas@klayme.com

Similar Listings.