(902) 877-2122
Single Family

Lw 13 205 Lewis Drive, Bedford, NS (MLS® 202529242).

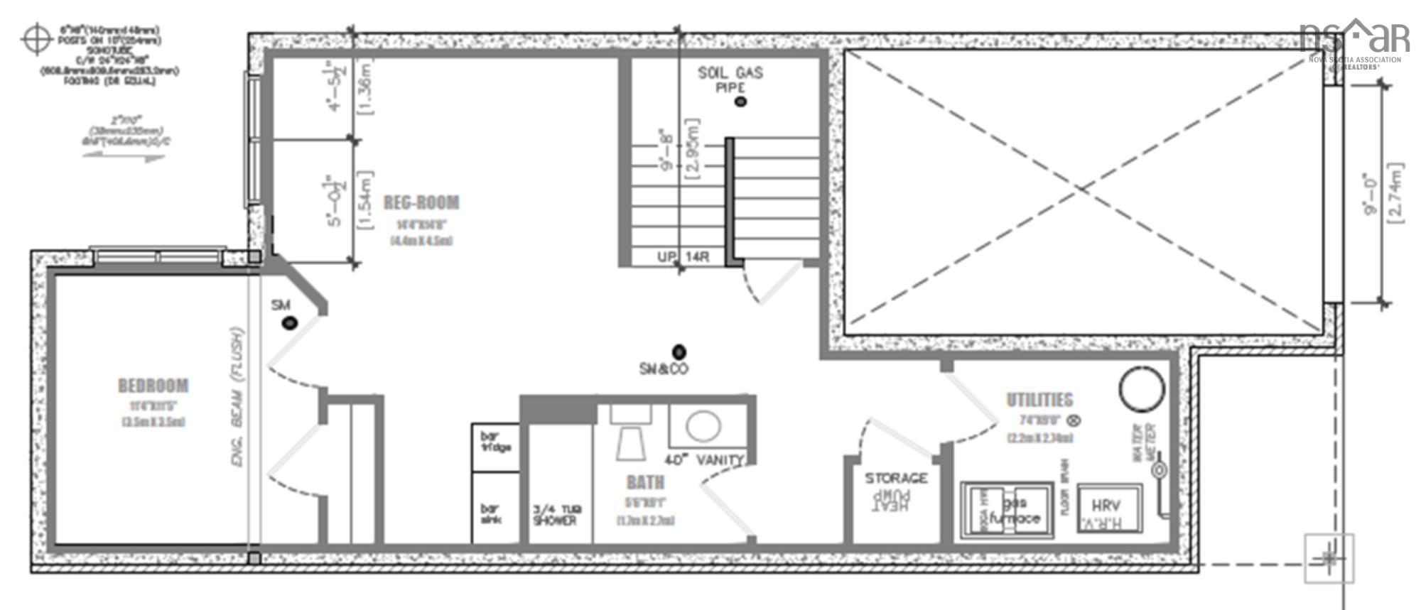
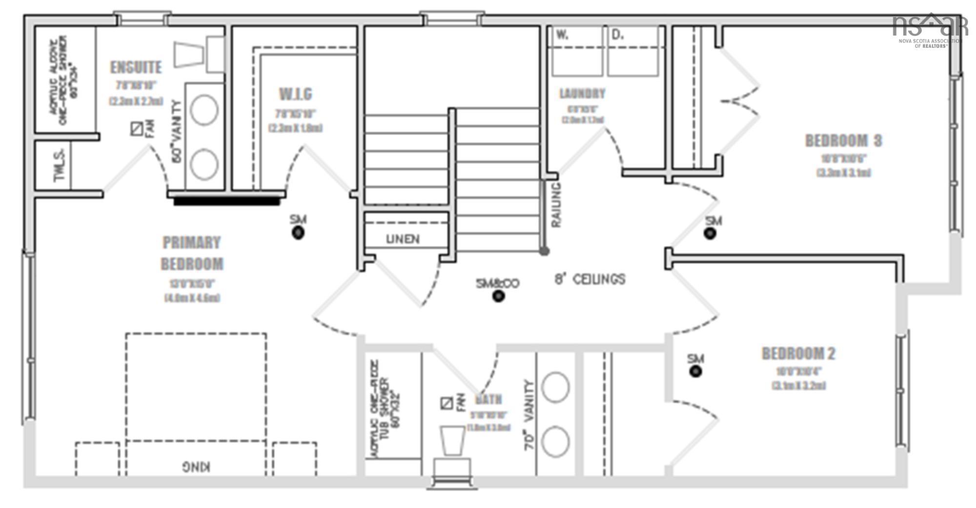
Lw 13 205 Lewis Drive, Bedford, NS (MLS® 202529242): **Ready to move in by February 28, 2026** Introducing The Bellmore, a beautifully crafted 4-bedroom, 3.5-bath detached home by Shaughnessy Homes in Belle Rose Park, West Bedford. Spanning 2,537 sq. ft. across three finished levels on a 34’ lot, this home blends modern style with everyday functionality. The main floor features an open-concept layout with a designer kitchen boasting a walk-in pantry, premium quartz countertops, and soft-close cabinetry. A stylish dining room bump-out adds a touch of elegance, perfect for gatherings. Engineered hardwood flows through the main and upper levels, complemented by an electric fireplace in the living area. Step outside to a beautifully finished composite deck, providing long-lasting durability with low maintenance. The finished WALKOUT basement is equipped with a wet bar, large bedroom, full bathroom and a spacious rec room perfect for extended family members. This home includes a fully ducted heat pump with natural gas backup, plus rough-ins for a gas range, dryer, BBQ, water heater, and a 50 AMP EV charger. Nestled off Larry Uteck Blvd in the serene Belle Rose Park, this home is steps from schools, parks, and amenities. Built with Shaughnessy Homes’ signature quality, The Bellmore is a rare find in one of Bedford’s most desirable communities.

Directions
Hammonds Plains to Lewis Drive

Listing Courtesy of: Royal LePage Atlantic

$859,900
MLS®
202529242
PID
41547464
List Price
$859,900
Type
Single Family
Style
Detached
Sewer
Municipal
Building Age
0
Foundation
Poured Concrete
Exterior
Stone, Vinyl
Flooring
Engineered Hardwood, Laminate, Tile
MLA
1,730 ft2
TLA
2,537 ft2
Bedrooms
4
Bathrooms
4
Water
Municipal

Utilities

  • Cable
  • Electricity
  • High Speed Internet
  • Natural Gas
  • Telephone

Features

  • Ensuite Bath
  • HRV (Heat Rcvry Ventln)
  • Electric Fireplace

Community Features

  • Park
  • Playground
  • Recreation Center
  • School Bus Service
  • Shopping

Rooms.

LevelTypeDimensions
Main FloorFoyer6.2 x 10.2
Main FloorBath 12 pc
Main FloorLiving Room9x14
Main FloorDining Room12x8.6
LevelTypeDimensions
Lower LevelKitchen8.1x13.9
Lower LevelRec Room14.4X14.8
Lower LevelBedroom11.4X11.5
Lower LevelBath 34 pc
LevelTypeDimensions
2nd LevelPrimary Bedroom13x15
2nd LevelEnsuite Bath 15 pc
2nd LevelBedroom10.8 x 10.6
2nd LevelBedroom10x10.4
2nd LevelBath 24 pc
2nd LevelLaundry6.8x 5.6


Schools.

TypeName
Elementary SchoolBasinview Drive Community School
Middle SchoolRockingstone Heights School
High SchoolRockingstone Heights School
Elementary School (Fr. Imm.)Sunnyside Elementary School
Middle School (Fr. Imm.)Rocky Lake Junior High School
High School (Fr. Imm.)Charles P Allen High School

contact the agent.

Nas Klayme
(902) 877-2122
nas@klayme.com

Nas has been a licensed REALTOR® since 2003. Nas enjoys the challenge of matching people to their dream homes.

Nas Klayme.

REALTOR ®
RE/MAX nova
(902) 877-2122
nas@klayme.com

Similar Listings.